トップへ戻る

【リノベ事例】千代田区富士見2丁目/リノベーションプロジェクト

今回は、歴史と学問が融合する「千代田区富士見2丁目」に位置する築45年中古マンションのリノベーションをレポートしていきます。

1.地域情報

・富士見 名前の由来

「富士見」という地名は、1872年(明治5年)に九段坂周辺からの富士山の眺望が美しかったことに由来して誕生しました。この地域は江戸時代から富士山が見える眺望の良い場所として知られ、「富士見坂」や「富士見町」として発展してきました。

今昔マップon the webより作成

・地域の歴史

千代田区は、23区の中心部に位置し、皇居を囲む地域として日本の政治・経済の中枢として発展してきました。
江戸時代(1603~1868年)に江戸城(現在の皇居)が築かれ、大名屋敷や武家屋敷が広がり経済の中心として発展しました。
明治維新(1868年)後、江戸は東京と改名され、1878年(明治11年)には東京15区の一つとして麴町区が設置されました。
1947年(昭和22年)に、行政区画の再編により麴町区と旧神田区の一部が合併して現在の千代田区が誕生しました。千代田区という名称は、江戸城の別名「千代田城」に由来しています。

戦後の高度経済成長期には、大手町・丸の内がオフィス街として発展し、日本経済の中枢機能を担うようになりました。

現在の千代田区は、皇居を中心に国会議事堂、首相官邸、各省庁などの政治機関が集結しています。東京駅を含む主要交通拠点、日本を代表する企業の本社、大学などの教育機関、政治・経済・文化の中心地として重要な役割を果たしています。
区内には多くの歴史的建造物や文化財も保存されており、日本の伝統と近代が共存する特徴的な都市景観を形成しています。

・鉄道の歴史

千代田区内で最初に開業した鉄道は、1882年(明治15年)の東京馬車鉄道で、電車や蒸気機関車ではなく馬が客車を引っ張る「馬車鉄道」でした。1914年(大正3年)には東京駅が開業し、有名な赤レンガ駅舎が完成しました。

1927年(昭和2年)に日本初の地下鉄が上野から浅草間で開業し(現在の東京メトロ銀座線)、千代田区の交通網の基礎が築かれました。
1954年(昭和29年)には丸ノ内線が池袋から御茶ノ水間で開業
1964年(昭和39年)の東京オリンピックに合わせて東京メトロ日比谷線も開通
1970年代から80年代にかけて千代田線や半蔵門線など地下鉄網がさらに拡大
2012年(平成24年)には東京駅の赤レンガ駅舎が創建当時の姿に復元されました。

千代田区は日本の鉄道発祥の地として、現在も首都東京の交通の中心的役割を担っています。

最寄りの飯田橋駅は、JR中央・総武線、東京メトロ東西線・南北線・有楽町線、都営大江戸線の計5路線が乗り入れる重要な交通拠点です。利便性の高さゆえに、通勤・通学時間帯には乗客が集中し、駅構内の混雑が顕著となります。

■「飯田橋駅」からJR中央・総武線で「東京駅」まで約13分
■「飯田橋駅」からJR中央・総武線で「新宿駅」まで約12分
■「飯田橋駅」から東京メトロ東西線で「大手町駅」まで約6分

・これからの千代田区(飯田橋エリア)

千代田区では、都市の利便性向上や防災対策を目的とした多くの再開発が進行中です。

飯田橋駅一帯は近年再開発や駅舎工事の建て替えなどが進んでおり、2014年(平成26年)に「飯田橋サクラテラス」が開業しており、JR飯田橋駅西口駅舎などの再開発・建て替えが行われました。
今後も飯田橋駅周辺のエリアは多くの再開発・まちづくり計画が立てられているため、不動産開発・不動産投資・住まい情報の情報に注目です。

富士見二丁目3番地区第一種市街地再開発事業
飯田橋駅西口周辺には古い建物が多く、防災面での課題が指摘されているエリアですが、再開発の進展により、安全性を向上させた街並みの整備が進められます。

A敷地には地上21階・地下2階、高さ約130mの超高層ビルを建設し、オフィス、住宅、商業施設、子育て支援施設を整備予定です。また、駅近くのB敷地には地上6階・地下2階、高さ約33.5mのオフィスビルを建設します。
この開発計画では、歩行者ネットワークの改善や広場の整備を進め、快適で安全な都市空間を創出する計画です。工事は2026年度開始、2029年度竣工予定です。

都庁HPより:https://www.metro.tokyo.lg.jp/documents/d/tosei/01_01_523

飯田橋駅中央地区第一種市街地再開発事業
飯田橋駅中央地区は、駅西口とアイガーデンエリアを結ぶ重要な場所であり、長年広場の不足が課題とされてきました。
計画では、交通機能整備、まちづくり、大災害時対策を重視し、安全で快適な歩行空間の整備、立体的な賑わいの創出、災害時の待機スペース確保を進めます。飯田橋駅の玄関口としてふさわしい都市拠点の形成を目指します。

野村不動産HPより:https://www.nomura-re.co.jp/cfiles/news/n2016012101012.pdf

飯田橋駅東地区第一種市街地再開発事業
飯田橋駅東側では、超高層ビル建設を含む再開発を実施し、街の動線を整えることで新たな人の流れを創出します。周辺道路の拡幅や電線の地中化など、景観にも配慮した計画です。
新設する地上26階・地下2階、高さ約130mの超高層ビルは、高層階が住宅、中層階がオフィス、低層階が商業施設で構成されます。竣工は2026年を予定しています。

清水建設HPより:https://www.shimz.co.jp/company/about/news-release/2022/2022047.html

 

・周辺施設

千代田区には、歴史と現代が調和する魅力的なスポットが数多くあります。中でも飯田橋エリアは、名所が豊富な人気の地域です。

靖国神社
日本の歴史において重要な役割を担い、政治的議論の対象となることもあります。多くの日本人にとっては、先人を敬い平和を祈るための大切な場所です。
境内は桜の名所として知られ、気象庁の桜開花宣言は靖国神社の標本木を基準に行われます。
歴史的背景から注目されることが多いですが、その圧倒的な規模と洗練された美しさが大きな魅力となっています。

日本武道館
北の丸公園内にある歴史ある多目的アリーナで、伝統的な武道大会からコンサートまで、様々なイベントが開催される名所です。八角形の特徴的な外観と優れた音響設計により、多くのミュージシャンにとって「聖地」とされ、会場ならではの雰囲気と臨場感は格別です。
さらに、武道に関するイベントや講習が頻繁に開催され、儀式や試合の観戦も楽しめます。
周辺には千鳥ヶ淵や北の丸公園などの観光スポットがあり、散策にも最適な立地です。

東京大神宮
1880年(明治13年)に東京の伊勢神宮遥拝殿として創建され、「東京のお伊勢さま」として広く親しまれています。神前結婚式発祥の神社でもあり、今なおその伝統的な結婚の儀式を守り伝えています。さらに、縁結びの御利益があることで知られ、多くの人々が祈願に訪れる価値あるパワースポットとなっています。

2.物件情報

・立地

飯田橋駅周辺はオフィスが立ち並び、人の行き来が多く、整備された治安の良い環境です。周辺には大学が多く、駅周辺には学生向けのリーズナブルな飲食店も充実しており、利便性に優れています。
一方で、週末は人通りが少なく、静かに散歩を楽しむのに適した雰囲気になります。少し歩けば神楽坂や東京ドームにもアクセスでき、さまざまな魅力を満喫できます。

再開発された「飯田橋サクラテラス」をはじめとする複合施設が物件の目の前にあり、快適な環境が整っています。

・物件の特徴

赤レンガのタイル貼りでヴィンテージ感と上品な雰囲気があります。玄関ホールは広々としていて懐かしい趣があります。

2024年(令和6年)に大規模修繕工事が行われ、築年数が経っていますが清掃が行き届き清潔感があり、管理の良さが伺えます。

屋根付きの駐輪場が2か所あり、整備が行き届いています。

・物件概要

所在地:東京都千代田区富士見2丁目
交通:JR中央・総武線、東京メトロ東西線・有楽町線・南北線、都営地下鉄大江戸線「飯田橋」駅徒歩3分
構造:鉄筋コンクリート造陸屋根7階建
総戸数:42戸
専有面積:39.33㎡
築年月:1979年10月

・間取り図< Before>

・室内写真<Before>

3.プランニング

・コンセプト

「駅徒歩圏で手に入れる、利便性と穏やかさが共存する暮らし」

なんと言っても、駅が近く、通勤や外出の利便性が抜群の好立地。平坦な道が広がり、年配の方も快適に移動できる環境です。窓を開けても騒音の心配がなく、都会の喧騒を忘れられる穏やかな住まいです。
仕事に打ち込むビジネスパーソン、充実した暮らしを楽しむ共働きカップル、ゆったりと過ごす老夫婦――すべての世代にとって快適な暮らしを叶えます。

・リノベーション担当者の声と施工工事

【リノベーションのポイント】
Plan 1. 暮らしやすさを追求したキッチンと収納の工夫
Plan 2. 広さを生かす、無駄のない住空間
Plan 3. 自然光と収納の工夫で快適な脱衣所に
 

 

Plan 1. 暮らしやすさを追求したキッチンと収納の工夫
多くの女性から寄せられた要望を受け、キッチンには食洗器を優先的に設置。そのため、3口コンロでは食洗器の設置が難しく、調理スペースも30㎝しか確保できないことから、2口コンロを採用します。
また、LDKの収納はパントリーとしても活用できる設計となっており、使い勝手の良さと十分な収納スペースの両方を兼ね備えた快適な空間を実現しています。

 

Plan 2. 広さを生かす、無駄のない住空間
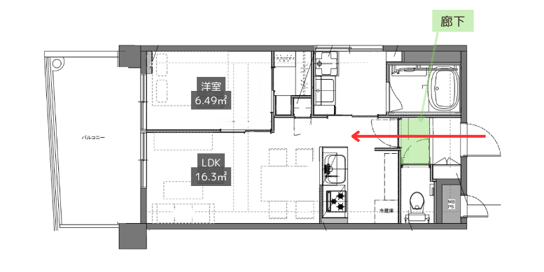
LDKと居室の快適な広さを確保するため、廊下の面積を可能な限り抑えた設計にしています。これにより、居住空間を広く使えるようになり、ゆったりとしたリビングや機能的な居室を実現しました。無駄をなくし、限られたスペースを最大限に活かす工夫を取り入れています。

Plan 3. 自然光と収納の工夫で快適な脱衣所に
もともとキッチンの横に設置されていた腰窓を、脱衣所の採光窓として活用し、ゆとりのある空間を確保します。洗濯機置き場の上棚については設置を検討中で、設ける場合は稼働式とし、窓との兼ね合いを見ながら後から調整していきます。
また、梁(ハリ)の干渉を考慮し、浴室の位置を工夫して配置。さらに、脱衣所の梁(ハリ)のスペースを収納として活用し、機能的な空間づくりを実現します。

・間取りBefore/After(予定)

4.解体/施工工事(7月3日更新)

・解体

当初の予定通り問題なく解体作業が終了し、次の工程が順調に進行しています。

マンションの梁(ハリ)は目立ちやすく、空間に影響を与えることがあります。懸念していた浴室天井の梁(ハリ)は、約50㎝の高さとなる見込みですが、現状プランであれば天井全体を下げる必要がなく、計画通り進めることにしました。

浴室の向きを90度変えるプランも検討していましたが、この案では梁(ハリ)が影響し、天井が約50㎝下がって圧迫感が出てしまいます。現状のプランでは天井の下がりを約17㎝程度で済むため、空間にゆとりを持たせることができます。

既存の給湯器に追い焚き機能を追加し、LD(リビングダイニング)に新たにエアコンを設置するため、エアコンダクト工事を実施します。あわせて、管理組合の許可を得たうえで、所定の位置に「コア抜き」と呼ばれる円筒形の穴あけ工事を行います。

・枠組工事~壁立ち上がり(8月9日更新)

解体が終わり、枠組みができて壁が立ち上がったことで、住まいのかたちが少しずつ見えてきました。

追い焚き機能の追加とLDへのエアコン設置に伴い、ダクト工事を実施しました。配管通しのため、所定の位置にコア抜き工事も行いました。

採光のある脱衣所は、この時点でも十分に明るく、風通しの良さを感じられる空間となっています。

洋室にはWIC(ウォークインクローゼット)も備わっており、ゆとりある室内空間がイメージできます。

LDKのキッチン部分に壁が設けられ、空間の輪郭が明確になってきました。

5.施工完了(9月18日更新)

角部屋で2面採光が取れるこの部屋は、明るく開放的な空間を生み出しています。各所に収納の工夫を施し、細部まで配慮された設計によって、快適に過ごせる余白のある空間に仕上がりました。

・室内写真<After>

✓暮らしやすさを追求した、機能的で心地よいキッチン
リクエストの多い食洗器を設置し、キッチンにはグレーを採用することで、落ち着きと上質感のある空間に仕上げました。キッチン背面にはあえてカップボードを設けず、自由に空間をアレンジできる余白を確保しています。

さらに、キッチン横の収納はパントリーとしても活用可能。食品や日用品をすっきり整理できるため、キッチンまわりは常に片付き、調理や片付けもスムーズに行える使い勝手の良さを実現しています。

 

✓自然にゾーニングできるLDKで描く多彩な暮らし
廊下の面積を可能な限り抑えることで、LDKや居室にゆとりを持たせた設計としました。その結果、実際に使える居住空間が広がり、リビングは開放的に、居室も家具を置いて快適に過ごせる機能的な空間となっています。
さらに、LDKの中央には梁があり、照明を2箇所に設置。この光の配置によってリビングとダイニングを自然に分けられ、ライフスタイルに合わせた多彩な使い方ができます。

 

✓広さと明るさを叶えた、機能美あふれる洗面室
腰窓を活かした洗面室は、窓の大きさに合わせて設計することで、これまでになく広々とした空間に仕上がりました。自然光がたっぷりと差し込むため、明るく開放感のある雰囲気を演出しています。

また、洗濯機置き場の上には、必要に応じて高さを調整できる稼働棚を設置。さらに梁による干渉スペースも収納として活用することで、限られた空間を無駄なく使い切りました。機能性と快適性を両立した、使い勝手のいい洗面室を実現しています。

・担当者インタビュー

物件裏の富士見小学校エリアは坂が多い地域ですが、この物件は平坦な立地にあり、日常の暮らしやすさが大きな特徴だと感じています。工事も順調に進み、スケジュール通りに無事完成できて、ほっとしています。

■自由度と快適さを追求したキッチン空間
キッチンは絶対に食洗機を入れたいと考えていました。そのため『2口コンロ+食洗機』を採用しています。背面にはあえてカップボードを設けていないので、冷蔵庫のサイズを気にせず選べますし、暮らし方に合わせて収納も柔軟に確保できます。結果として、幅広い方に選んでいただける間取りになったと思います。

■自然光が差し込む洗面室という新しい試み
今回のリノベーションで特にこだわったのは、洗面室に窓を設けたことです。マンションでは窓のない洗面室が一般的ですが、自然光が差し込むことで電気をつけなくても明るく、湿気もこもりにくい点はとても魅力的だと感じています。今後も積極的に取り入れたい工夫のひとつです。

設計段階から空間の無駄を省き、収納をしっかり確保したことで、居室やLDKは図面以上に広さを感じられる仕上がりになりました。居室はゆとりがあり、当初のコンセプト通り、二人暮らしに最適な住まいになったと思います。これから暮らす方にとって、心地よく過ごせる空間になれば、とても嬉しく思います。

(担当者:リノベーション事業部 菊地)

・フォトギャラリー