【リノベ事例】大田区田園調布本町/リノベーションプロジェクト
今回は、高級住宅街と緑豊かな自然に囲まれた「大田区田園調布本町」に位置する築51年中古マンションのリノベーションをレポートしていきます。

1.地域情報
・田園調布 名前の由来
明治時代、この一帯は「調布村」と呼ばれ、現在の「田園調布」とは名称が異なりました。大正時代に入って、実業家の渋沢栄一が数名とともに会社を立ち上げ、この一帯の開発に力を注ぎました。イギリスで提唱されていた「田園都市開発構想」をモチーフに、街の開発が進められ、現在の田園調布となりました。

今昔マップon the webより作成
・地域の歴史
大正時代初期。急激な都市化が進んだことで、人口集中による住環境の悪化が問題になっていた状況に対して、渋沢栄一はイギリスの経済学者エベネザー・ハワードが提唱した「田園都市論」を元にした、都市と自然の長所を併せ持った「田園都市」の構想を描いていました。
新一万円札の肖像・渋沢栄一 設立に関わり現存する企業は167社 https://t.co/tPoJutpnxJ pic.twitter.com/oP08NyPKH0
— PR TIMESビジネス (@PRTIMES_BIZ) July 1, 2024
1915年(大正4年)、そんな渋沢の元に相談が持ち込まれたことで、当時「東京のチベット」とも呼ばれるほど交通が不便な農村地帯に、東京中心部に繋がる鉄道を通して、それを核として新たな宅地を開発する「田園都市」計画が、実現に向けて動き出しました。その計画の地が、今の田園調布になったのです。
自然と都市が調和する理想の街を目指すという、当時の日本では前例がない都市計画でしたが、担当者たちは周辺の地主にこの理想を語って共感者を増やしていきながら、無事に田園都市を実現させました。
この実現した「田園都市」の特徴である、扇型に広がる住宅地と豊かな緑の街並みは、一世紀を経た現在も変わらず顕在しており、田園調布の魅力となっています。

■東急東横線で渋谷駅まで13分
■東急目黒線で目黒駅まで11分
■東急多摩川線で蒲田駅まで11分
■東急東横線(東京メトロ副都心線直通)で池袋駅まで35分(乗り換えなし)
■東急東横線で横浜駅まで17分
・周辺施設
旧田園調布駅の駅舎
前述した田園調布の扇の要となる位置には、赤い屋根のついた白い壁のかわいらしい建物が建っています。これは、1923年(大正12年)の開業以来、長く愛されてきた旧駅舎を復元したものです。
駅の地下化に伴い旧駅舎は1990年(平成2年)に取り壊されていましたが、地元の人々からの要望で2000年(平成12年)にほぼ同じ場所に復元しました。
現在も田園調布のシンボルとしてたたずんでいます。

田園調布せせらぎ公園・多摩川台公園
多摩川駅の東側に隣接する“田園調布せせらぎ公園”は、水と緑に囲まれた豊かな自然を感じることのできる公園です。 春には桜、秋には紅葉を楽しむことができます。
園内に3か所ある大きな湧水池には様々な水生生物が生息していて、3か所の多目的広場はいつも多くの人で賑わっています。
公園内には“せせらぎ館”もあり、自然の景観を楽しみながら、ゆっくりとくつろぎ、休憩・読書・飲食を通じて交流できる憩いの場となっています。
せせらぎ公園のドングリマップが
できました!
せせらぎ館内にあります✨色んな種類のドングリたちを合わせて展示しています。
公園内にはたくさんのドングリが
落ちているので、
探してみてください🌰 pic.twitter.com/KC3rnhoJlU— 田園調布せせらぎ公園・せせらぎ館(公式) (@d_seseragi) November 15, 2023
暑い日が続いております☀️
せせらぎ公園の大山坂ではセミが元気に鳴いています🌳公園にお越しの際は熱中症対策を十分にしていただきお気をつけてお越しください。#夏#セミ#田園調布せせらぎ公園#せせらぎ公園#田園調布せせらぎ館#せせらぎ館#大田区#田園調布#多摩川駅すぐ pic.twitter.com/sB64Mxr1Ha
— 田園調布せせらぎ公園・せせらぎ館(公式) (@d_seseragi) August 13, 2024
一方、多摩川駅から西に向かって多摩川沿いに全長約750mの“多摩川台公園”もまた、このエリアで人気がある公園です。
公園の中ではさまざまな動植物や、田園調布エリアの歴史に触れることができます。春には花見で賑わいを見せます。

特徴的なのは、公園内に古墳が点在すること。4世紀〜7世紀ごろに建てられた古墳が10基ほどあることです。園内には古墳展示室もあり、田園調布エリアのルーツについて学べる貴重な場所です。
多摩川
多摩川駅から西に向かって徒歩でわずか数分で多摩川河川敷に着きます。野球やサッカーができるグランド、テニスコートのほかに、ゴルフができる“東京多摩川ゴルフ練習場”、川を渡った川崎側には“丸子橋ゴルフ練習場”がある広い河川敷です。
信号や車がなく、川からの風やまぶしい太陽の光、草花の香りといった心地よい自然に包まれながら、ジョギング、散歩、サイクリングができるコースとしても、おすすめのスポットです。

沿道に生い茂る木々や桜の名所もあり、季節の移り変わりを肌で感じられます。
また、川を超えると武蔵小杉のビル群がそびえており、自然と都会の調和した景色も見どころです。
・これからの大田区開発
大田区ではJR・東急蒲田駅と京急蒲田駅間をつなぐ新空港線(通称:蒲蒲線)の開通を検討しています。
今は「蒲田駅」と言っても、JR・東急蒲田駅と京急蒲田駅の2つの駅が存在しています。2つの駅の間の距離は800mほど離れており、徒歩では遠すぎる立地なのが長年の課題でした。
そこで、2022年(令和4年)に「第三セクター:羽田エアポートライン」が設立され、JR・東急蒲田駅の地下に地下駅を設置し、京急蒲田駅まで連結する計画が進められることになりました。
この路線が開業すれば、離れていた蒲田駅同士がつながると共に、将来的には京急空港線へ直接乗り入れし、JR・東急蒲田駅から乗り換えずに羽田空港まで移動ができる計画も検討されています。

また、新空港線(蒲蒲線)と東急東横線や東急多摩川線との相互直通運転が可能になれば、多摩川・田園調布・渋谷から羽田空港へのアクセスもよくなります。
JR・東急蒲田駅の利便性が向上することで、より人が集まりやすいエリアとなれば、さらなる再開発を行う可能性もあり、今後も蒲田駅周辺の再開発・まちづくり計画に注目が集まるでしょう。
2.物件情報
・立地
横浜と渋谷の中間地点に位置する、急行が止まる東急東横線「多摩川」が最寄り駅で、かつ、路線も東急東横線だけでなく、目黒駅に繋がる東急目黒線、蒲田駅に繋がる東急多摩川線も通っているので、とても利便性がよい場所です。

建物は築年数が長いものの、2016年(平成28年)に大規模改修工事を行い、エントランスがきれいに改修されています。夜間はオートロックが施錠されセキュリティ面も万全です。さらに、現在は耐震補強工事中で、2026年に工事を完了する予定で、管理がしっかり行き届いています。
「多摩川」と聞くと、台風による川の氾濫などの水害の影響を受けるイメージがあるかもしれませんが、物件はハザードマップで災害リスクが低いエリアに該当しているので、影響を受けにくい安全性の高い立地と言えるでしょう。
・物件概要
所在地:東京都大田区田園調布本町
交通:東急東横線・東急多摩川線・東急目黒線 「多摩川」駅 徒歩7分
構造:鉄骨鉄筋コンクリート・鉄筋コンクリート造 地上12階地下1階建
総戸数:101戸
専有面積:34.72㎡
築年月:1971年12月
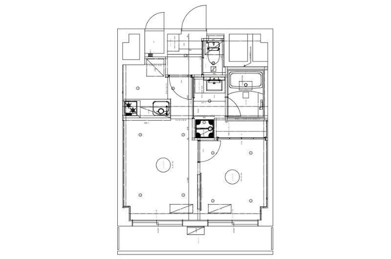
・間取り図<Before>

・室内写真<Before>




3.プランニング(10月17日 更新)
・コンセプト
~自然豊かな緑の街でゆっくりと腰を据え、眺望の良い開放的空間に住む~
都心に繋がる3路線が通る利便性の高さに加えて、自然が豊かな街。周りに高い建物がなく、部屋からは渋谷までも眺望できるマンション。
そんな好条件が揃いつつも、築年数の古さと部屋の窮屈感によって魅力が発揮されなかった物件を、当社のリノベーションでバリューアップをしていきます。
・リノベーション担当者の声と施工工事
PLAN.01 暗く窮屈な空間を、明るく開放的に変える
PLAN.02 防音機能を備えた窓にグレードアップ
PLAN.03 機能性と価格のバランスを取った設備選び
PLAN.04 開放感を維持しながら収納力を確保
PLAN.01 暗く窮屈な空間を、明るく開放的に変える
もともと2DKで部屋が2つある間取りでしたが、1LDKの間取りへの変更を予定しています。1LDKの広々とした開放的な空間になれば、二人でも窮屈感なく生活することができます。リビングは8畳以上の広さがあるので、二人掛けのソファやダイニングテーブルも置くことが可能になるでしょう。
また、居室との間はFIX窓で仕切り、キッチンは壁付けではなく前面が開けるように置きます。採光が取れて奥行きができ、さらに、キッチンの色も白を選択することで、圧迫感がなくなって室内の開放感がより増すだろうという狙いです。

PLAN.02 防音機能を備えた窓にグレードアップ
部屋の難点として、国道沿いのため騒音があるという点があります。これまでも二重窓を採用して防音対策をしていたものの、古い物件でよく使用されていた単板ガラスだったので、その二重窓の造りでは対策として不十分でした。さらに言うと、網戸もないという状態でした。
そこで、外からの騒音を遮断して暮らしをもっと快適にするため、空気の層が防音壁となる「インプラス(内窓)」を採用していきます。インプラスは国道などの大きな音も図書館並みの静けさに軽減できると言われ、また、断熱性にも優れています。
網戸も新規で取り付ける予定です。

PLAN.03 機能性と価格のバランスを取った設備選び
「狭い空間でも利便性の高い間取りを実現しつつ、若年層や年配の方に購入してもらいやすいリーズナブルな販売価格にする」という点が今回のポイントの1つです。
そこで、例えばキッチンはペニンシュラではなく通常のキッチンを工夫して設置するなど、各所に過剰に高級な設備は入れず、コストパフォーマンスが高い機能性を重視した設備を入れるようにしていきます。

PLAN.04 開放感を維持しながら収納力を確保
今回は34.7㎡という広くない部屋のため、収納がカギになります。
収納のポイントは何と言ってもウォークインクローゼットの設置。2人分の荷物は問題なく収納できるようにしていきます。
また、玄関からLDKへの扉は最小限の位置に設置し、キッチンには冷蔵庫と収納スペースを確保しています。キッチンの下の収納はもちろん、キッチンの上にも収納を設置し、洗面台も収納スペースがあることで、十分な収納力を確保していく予定です。

・間取りBefore/After(予定)

4.解体/施工工事(12月13日 更新)
・解体
解体工事が始まりました。設備を全て入れ替えるため、床を含めて全て撤去しましたが、この撤去を行った際に思わぬ事実が見つかりました。
分譲時の図面を見ながら施工会社と共に確かめてきたものの、解体すると図面よりも躯体が室内側に大きく出ていることが判明。
その影響で、数センチ単位で配置を検討してきた当初の間取りに必要なスペースは確保できず、間取りを変更せざるを得なくなりました。

時間が限られている中、「あくまでバリューを落とさず最善の間取りはないか」を熟考の末、水回りの配置を中心に変更することになりました。
シューズインを対面のスペースに移動し、空いた箇所にトイレを移動。浴室と洗濯機置き場の向きを変更し、洗面所の位置をずらします。
一方で、当初予定していたウォークインクローゼットは通常のクローゼットになりましたが、代わりに洗面台の隣にトールキャビネットを置くことで、収納力は維持するようにします。

制限が見つかった中でも最大限の調整を行うことで、リノベーションによるバリューアップを維持しつつ、スケジュールに支障をきたすことなく工事を進行することができました。

5.施工完了(2025年1月21日 更新)
今回のリノベーションでは解体をした後に予期せぬ制約があったものの、部屋の窮屈感をしっかりと解消し、眺望の良い開放的な空間を実現しました。
✓明るく開かれたスペースに変える
✓使い勝手の良い空間づくり
✓防音・断熱効果によって快適な住空間の実現
✓開放感を損なわずに、収納スペースを確保
・室内写真<After>
明るく開かれたスペースに変える
リノベーション前は2DKだったので、2つの居室とダイニングキッチンという間取りでした。壁で区切られてしまうことで、どうしても開放感がなくなりやすいのが難点でした。
また、天井も低く、平米数の割に狭く感じられるという点もありました。

そこで、まずは間取りを1LDKに変更をしました。
さらに、壁と床、キッチンの色は、光の反射率が高い白と明るいウッド調に統一することで、空間全体を明るく見せる効果を出します。キッチンは壁付けではなく、ガラスパネルのカウンターキッチンにしました。

これによってLDKに入ると、明るい空間が開けて窓もすぐに目に入るようになり、空間の広がりが感じられるようになりました。
また、天井の高さは全体的に高くすることに成功し、特に水回りは20cm上げることができ、この点でも開放感が出せるように改善されました。
使い勝手の良い空間づくり
使いやすく、住みやすい空間にしたことも、今回のリノベーションのポイントです。
もともとの2DKの仕切られた空間では、ソファーやテーブルなどの家具を自由に配置しにくく、部屋の使い勝手はよくありませんでした。
それが1LDKになると、自由度が高まり、自分好みの部屋に仕上げやすい空間になります。
また、以前は「浴室」「洗面台」「トイレ」が一緒になった3点ユニットバスでしたが、これも「トイレとお風呂は一緒に使えない」「収納に困る」などの使い勝手を悪くしている要因でした。

この点も居住用で長く心地よく住めるようになることを考えて、各設備を独立させることで、シンプルな導線となり使い勝手は格段に改善されました。

防音・断熱効果によって快適な住空間の実現
国道沿いの物件のため騒音を解決することも、この物件をバリューアップさせるためのポイントでした。

そこで今回、木製の枠を変更し、騒音を遮断する防音壁となる「インプラス(内窓)」を採用し、外からの音を飛躍的に防げるようにリノベーションしました。
一般的には、交通量の多い道路の騒音80dBは、窓のみだと55dBまで下がりますが、インプラスをつけることで40dBまでに下げることができ、人間の体感としては10dB下がることで音は約半分に感じられると言われています。
インプラスによって暮らしをする上で全く問題ないレベルになりました。

また、インプラスには、防音効果だけではなく、その空気層により熱の移動を遅らせる役割があります。それによって、冬は窓からの冷たい空気の流入を抑え、夏は室内の冷たい空気の流出を抑えるという断熱効果が期待でき、室温の面でも快適な暮らしに繋がります。
インプラスの採用によって、防音効果はもちろん断熱効果の性能もあるので、快適な住環境を実現しました。
配置を工夫することで、十分な収納スペースを確保
今回設置した収納の箇所は、洗面台の横、キッチンの上下、トイレ上、シューズボックス、クローゼット。さらには、冷蔵庫置き場の奥に棚やラックを配置できるスペースを用意しています。
もともと広い物件ではなく、解体後に判明した広さの制約もあったことで、収納スペースを確保するのは簡単ではありませんでした。その中でも、配置を考慮して工夫をし、最大限の収納を確保することができ、2人で暮らすのにも十分な収納となったと言えるでしょう。


・担当者インタビュー
ー完成したときどんな印象を持ちましたか?
リノベーション後の空間を見て、まず出てきた感想は「広くできた!」でした。
物件自体がそこまで広くなく、梁が壊せない・コンクリートがでっぱっているなどの制約もあったので、「完成しても狭くならないかなあ」と心配していましたが、そういった点を解消でき、開放的な空間になったと思います。
特に気に入っているのは、3点ユニットだった水回りが、リノベーションでそれぞれが独立したこと。収納もあって使いやすくなり、私自身も使えそうなイメージが湧きました!
ー印象的だった出来事は何ですか?
プランニング時から間取りを熟考していました。複数のプランから一番良いプランを選んで「これでいける!」と思ったものの、解体後にプランを練り直す必要が出ました・・。それでも住む人が快適になるように解決策を探していき、最善な間取りを作り直して、完成に至りました。
この一連の、制約がある中でも目的を実現した間取り作りのプロセスは、とても印象的でした。
ー学んだことや次回に活かせることはありますか?
リノベーションをしながら、素早い対応力が求められました。もっと対応力を高めるために、設備のサイズや組み合わせをもっとたくさんインプットしておきたいと思います。
また、リノベーションが進む中でも、プランニング時に決めた「物件の立地」「ターゲット」「目的」といったことを忘れないように振り返ることが、特に今回のような予期せぬことが起きたときの対応の指針になるので、大事だと思いました。
ーリノベーションお疲れ様でした!
無事に完成できてほっとしています。実は最後にクリーニング作業をしました!バルコニーの壁の汚れを頑張って落としました(笑) 最後に自分の手を動かしたからか、愛着の沸く物件になりました。
早速お問い合わせもあり、これからどんな人がこの部屋に住むのか、楽しみです!
(担当者:リノベーション事業部 小浜)
・フォトギャラリー






最後までお読みいただきまして、ありがとうございました。
本物件は、お住まいをお探しの方へ向けての「リノベーション物件」として販売活動を行っています。
当社はリノベーション事業だけでなく、不動産投資のコンサルティング事業、1万円から出資の出来る不動産クラウドファンディング「投活」の事業も行っています。
今後も、リノベーション×不動産クラウドファンディング、リノベーション×不動産投資の事業にご期待下さい。