【リノベ事例】渋谷区代々木5丁目/リノベーションプロジェクト
今回は、都内でも歴史と文化が調和した緑豊かな「渋谷区代々木5丁目」に位置する築46年中古マンションのリノベーションをレポートしていきます。

1.地域情報
・代々木 名前の由来
「代々木」という地名は諸説ありますが、一説によると、この地に彦根藩の下屋敷(現在の明治神宮内)があり、庭の池のそばに昔から代々モミの大木が育ち「代々木」という地名が生まれました。しかし、この名の由来となった木々は1945年(昭和20年)5月の戦禍で惜しくも焼失し、その後新たに植え継がれました。

今昔マップon the webより作成
・地域の歴史
現在の代々木公園がある場所は、戦前は陸軍の代々木練兵場がありました。陸軍の敷地というだけあって広大な敷地でしたが、第二次世界大戦で日本が敗戦すると、戦後にGHQが進駐し、代々木練兵場はアメリカ軍の宿舎であるワシントンハイツとなりました。
戦後の復興とともに、東京が1964年(昭和39年)にオリンピックの開催地となると、ようやくアメリカ軍から返還されることになります。ワシントンハイツがあった場所には、オリンピックの選手村が開設され、オリンピックが終わると代々木公園となりました。
他にもこのエリアには、代々木公園をはじめ、国立代々木競技場、国立オリンピック記念青少年総合センター、NHK放送センターなどが建てられています。

現在の代々木は、歴史的な側面と近代的な都市機能が共存する、東京の中でも特徴的な地域となっています。
明治時代1885年(明治18年)に日本初の鉄道の一つである山手線が開通し、これにより交通の要所としての重要性が高まりました。
また、1927年(昭和2年)には小田急小田原線が開通しましたが、人口の少ない場所の路線であったため、開通からしばらくは乗客も少なく苦しい経営状況でした。しかし、現在では箱根や江の島といった、複数の観光地へつなぐ路線として高く評価されています。
■「参宮橋駅」から小田急小田原線で「新宿駅」まで約9分
■「代々木公園駅」から東京メトロ千代田線で「大手町駅」まで約18分
□「新宿駅」から小田急ロマンスカーで「箱根湯本駅」まで約1時間25分
□「新宿駅」から小田急ロマンスカーで「片瀬江ノ島駅」まで約1時間5分

・これからの代々木周辺
新宿区に隣接しているこのエリアは、西新宿の再開発により大きな影響を受けることが予想されます。現在、西新宿では複数の大規模な開発プロジェクトが進行中、または計画段階にあります。これに伴い、利便性が向上することで居住需要の高まりが期待され、今後の動向から目が離せません。
西新宿三丁目西地区第一種市街地再開発事業(事業中)
初台駅近く、オペラシティと新宿パークタワーの間に位置するエリアで新たな開発が計画されています。現在は雑居ビルや低層マンションが立ち並ぶ地域ですが、この再開発により防災力の向上も期待されています。
完成すれば、新宿の超高層ビル群の一角として街並みに大きな変化をもたらし、オフィス需要のさらなる拡大が予想されます。

出典:野村不動産HP
(仮称)新宿駅西南口地区 南街区共同開発
新宿駅周辺の利便性向上や国際競争力の強化を目的として、歩行者ネットワークの整備や環境負荷の低減、防災力の強化などが計画されています。
甲州街道を挟み南側が南街区になり、新宿区と渋谷区にまたがっています。
店舗、事務所、宿泊施設、駐車場などが含まれ、2023年から解体工事に着工しています。

出典:JR東日本「新宿駅西南口地区の開発計画について」
(仮称)新宿駅西南口地区 北街区共同開発
現在の京王百貨店新宿店・ルミネ新宿店ルミネ1の跡地の開発は、南街区共同開発の完成後、解体・新築工事に着手されます。主に店舗や宿泊施設が設置される予定で、2040年代までの完成を予定しています。

出典:JR東日本「新宿駅西南口地区の開発計画について」
・周辺施設
明治神宮
新年の初詣やパワースポットとしても人気の神社ですが、中でも本殿へ続く参道は、参拝者が心を落ち着け、自然と触れ合いながら神聖な空間へと導かれる道として設計されています。静謐な雰囲気の本殿は、都心と思えない静けさのなかで参拝ができます。
日本の歴史、文化、自然、そして信仰が融合した特別な場所として、観光地としても人気があり、国内外の多くの人に愛されています。
代々木公園
明治神宮の南に位置し、東京の中心部に位置する代々木公園は都会の喧騒から逃れ、自然の息吹を感じることができる貴重な空間です。緑豊かな森と開放的な芝生広場が共存するこの公園は、四季折々の表情を見せてくれます。
年間を通じて様々な野外フェスティバルが開催され、音楽や食、アート展など若者文化の発信地としての一面も持ち合わせており、常に新しいエネルギーで溢れています。
代々木八幡宮
代々木公園の西側に位置し、縄文時代の遺跡が発見された場所で、境内には竪穴式住居が復元されています。また、応神天皇を祀る神社として、厄除けや開運、縁結びのご利益があるとされています。都会の喧騒を忘れさせる落ち着いた雰囲気が特徴で、地域密着型の親しみやすい神社になります。
2.物件情報
・立地
渋谷区代々木は、新宿区に隣接する人気のエリアです。都会の喧騒を離れ、落ち着いた雰囲気が魅力の代々木は、暮らしやすさで高い評価を得ています。また、マンションの裏手には代々木公園や明治神宮が広がり、自然豊かな環境を徒歩圏内で満喫できる点が特に際立っています。
駅前から続く参宮橋商店街には、多くの生活に便利な施設が立ち並んでおり、整った周辺環境が魅力です。商店街を抜けると静かな住宅街が広がり、戸建て住宅も数多く見られるため、ファミリー層に特におすすめのエリアとなっています。

・物件の特徴
閑静で品のある雰囲気が魅力の低層レジデンスは、ライトベージュの外観が美しく保たれ築年数を感じさせません。
2016年には大規模修繕工事が施され、後付けで宅配ボックスが設置されるなど、住人の利便性がしっかり考慮されています。さらに、管理人が日勤で常駐しているため、管理体制は充実しており、1階住戸の目隠しとなる植栽も丁寧に手入れされています。共用スペースも清潔に保たれており、細やかな管理の行き届いた快適な住環境が整っています。

敷地の奥には広々とした駐輪場とバイク置き場が設けられており、利便性が高いです。

・物件概要
所在地:東京都渋谷区代々木5丁目
交通:小田急小田原線「参宮橋」駅徒歩9分
構造:鉄筋コンクリート造地上5階地下1階建
総戸数:64戸
専有面積:55.50㎡
築年月:1978年10月
・間取り図< Before>

・室内写真<Before>






3.プランニング(6月2日更新)
・コンセプト
「購入するなら、都心への行き来が快適で、緑に囲まれた落ち着いた場所を選びたい」
と住み替えを考える方にとっても、上質な生活を楽しめるエリアでもあります。
高齢のご夫婦をメインターゲットとしながらも、ファミリー層や二人暮らしの方にも最適な住まいを提案していきます。
既存の間取りを活かしながら、多用途スペースを設けることで、住まいの可能性を広げていきます。
・リノベーション担当者の声と施工工事
Plan1. 柔軟な動線と快適な居住空間の工夫
Plan2. 生活感を抑えたシンプルなキッチン空間
Plan3. 豊富な収納で快適な暮らしを実現する空間設計
Plan1. 柔軟な動線と快適な居住空間の工夫
もともと縦長だったリビングは、家族での暮らしを考え、2部屋を確保できるように形を維持しました。
ウォークインクローゼット(WIC)として使用していた部屋は、廊下とリビングの両方に出入口を設けることで、柔軟な動線を実現しています。
この部屋はリビング側を引違い戸にすることで、開けたままにすれば広々としたLDKとして使うことができます。また、ウォークインクローゼット(WIC)としての機能も兼ね備え、快適な住まいづくりを支えます。リビングの開放感と機能性を両立させた、暮らしやすさを重視した設計になっています。

Plan2. 生活感を抑えたシンプルなキッチン空間
最近では、開放的なオープンキッチンが人気を集めていますが、住まいの条件やライフスタイルによっては、独立キッチンの方が適しているケースもあります。
独立キッチンは、料理に集中できる環境を提供し、来客時の生活感を抑えるメリットがあります。さらに、ウォールキャビネットを設置することで収納スペースを確保し、使い勝手を向上させることができます。キッチン背面には棚を置けるスペースを設け、電子レンジや炊飯器のカウンター、食器棚として活用できるほか、空間を広く使うことも可能です。ライフスタイルやインテリアに合わせて柔軟に利用できる設計となっています。

Plan3. 豊富な収納で快適な暮らしを実現する空間設計
各部屋には広々としたクローゼットが備えられ、一つの部屋はウォークインクローゼット(WIC)としても活用可能です。さらに、独立キッチンの充実した収納スペースにより、生活用品をすっきりと整理できます。これにより、生活感を抑えたスタイリッシュな空間が広がり、豊富な収納によって快適で質の高い暮らしを実現します。

・間取りBefore/After(予定)

4.解体/施工工事
・解体
解体工事が終わると、配管の状態が予想と異なっていたため、水回りのレイアウトを再検討することになりました。
当初のプランでは、トイレの位置を大きく変更する予定でしたが、今回の解体作業を通じて、排水方式が一般的な“床排水”ではなく、一部の集合住宅で採用される“壁排水”であることが判明しました。
そこで、トイレを元の位置に戻しつつ、洗面室や浴室の広さを確保し、従来の仕様を維持できるようにプランを再検討しました。

修正プランでは、トイレを元の位置に戻し、洗面室の洗濯機置き場や洗面台、浴室とのバランスを検討しました。
トイレ横には収納スペースは確保できましたが、洗面室内の形が整っておらず動線に影響が出ており、加えてトイレのスペースが狭くなったことで快適性が損なわれています。さらに廊下にはデッドスペースが生まれ、全体のバランスに影響を与えています。そこで、“壁排水”の管を延長し、トイレの向きを変更することで広さを確保し、さらに洗面室の動線を調整しながら検討を重ね、最終的なプランにたどり着きました。
最終プランでは、トイレのスペース確保し、洗面室の動線をシンプルに整理しました。さらに、廊下のデッドスペースはトイレ扉の開口部として活用する設計に変更し、これまで納得できていなかった点を解消した間取りとなりました。

“壁排水”という問題が発生しましたが、最終的には適切な調整を経て、効率的に最適化されました。
・枠組工事~壁立ち上がり(6月12日更新)
解体後、枠組工事を終え、壁の設置が始まったことで、間取りの全体像が具体的に見えてきました。


トイレの“壁排水”は配管を延ばして壁を設置し、トイレの背面に配置しました。


5.施工完了(8月2日更新)
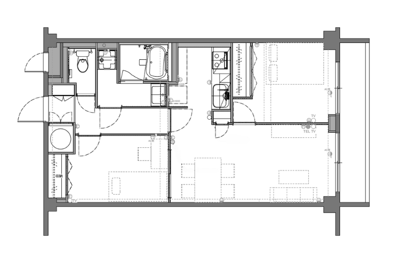
・室内写真<After>
独立したキッチンがLD(リビングダイニング)と緩やかに空間を分け、生活動線をすっきりと整理しています。隣接する2つの居室には、スライド扉と片開きドアをそれぞれ採用しており、個室としての独立性や一体空間としての開放感など、ライフスタイルに応じた柔軟な使い方が可能です。

✓ つながりと独立を両立した多機能空間
✓ 機能とデザインを両立した洗練のキッチン空間
✓ 配管問題から生まれた機能的な動線と収納
✓つながりと独立を両立した多機能空間
LD(リビングダイニング)に面して設けられたこの部屋は、居室としての独立性を保ちつつ、WIC(ウォークインクローゼット)のような大型収納や納戸としての活用も視野に入れた柔軟な設計が特徴です。
廊下とLDの両方から出入りできる2方向の動線は、窓がない空間にも光や風を取り込みやすくするだけでなく、用途や家具配置に応じた使い勝手の良さを高めています。LD側に引戸を採用することで、空間の一体感を保ちつつ、必要に応じて扉を閉めて個室として独立させることも可能に。ライフスタイルや用途に合わせて柔軟に使える一室に仕上がりました。

✓機能とデザインを両立した洗練のキッチン空間
独立キッチンの採用により、料理に集中できる落ち着いた空間を実現し、来客時にも生活感を抑えたすっきりとした印象を与えることができました。
トレンドのグレートーンでまとめたキッチンは、限られたスペースでも洗練された雰囲気にまとまり、スタイリッシュな仕上がりに。収納力のあるウォールキャビネットや棚スペースを確保したことで、使い勝手も大幅に向上しています。オープンキッチンとは異なる魅力を備えた、実用性とデザイン性の両立した空間となりました。

✓配管問題から生まれた機能的な動線と収納
解体後に判明したトイレの配管問題にも適切に対応することで、想定外の課題を無事に解消することができました。それに伴い洗面室の動線も見直され、スムーズな生活動線が確保されたことで、空間を有効に使った収納も実現。機能性と使いやすさの両面から、より快適な住環境へと改善されました。

・担当者インタビュー
トイレの配管が当初の予想と異なっていた点を除けば、間取りの大幅な変更はなく、工事はおおむね予定通りに進みました。
その中で、個人的に気になっていた点が3つありましたが、結果的にはいずれも何の問題もなく、満足のいく仕上がりとなりました。
①室内の梁による凸凹の違和感
室内には間取りに影響しない程度の小さな梁が数カ所あり、当初は凸凹が気になって不自然に感じていました。
→完成後は想像以上に自然な仕上がりになっていました。
②洗面室の配置変更と収納の工夫
トイレの配管の影響で、洗面室のレイアウトを従来にはないL字型に変更。洗面台と洗濯機置き場が離れて配置されることになり、使い勝手に不安がありました。
→それぞれに収納スペースがしっかり確保されており、実際の使い心地は良好。“アリ”な配置だと感じました。
③独立キッチン背面スペースの不安
独立型キッチンの背面に棚を置けるスペースを設けたものの、広さに不安がありました。
→完成後には十分な余裕があり、棚を置いても置かなくても自由に使える快適な空間となっていました。
最終的に、心配していた点はすべて問題なく解消され、購入時には安心してお選びいただけるほど、納得のいく仕上がりとなりました。
こうした経験は、今後のリノベーションにも安心して取り入れられるアイデアとして、自信につながっています。物件ごとのターゲットに合わせた部屋づくりの中で、有効な設計パターンの一例として今後の参考事例に加えたいと考えています。
この物件は、落ち着いた雰囲気を備えており、静けさを求める方々はもちろん、さまざまなライフスタイルに対応できる柔軟性をもった空間に仕上がりました。
(担当者:リノベーション事業部 小浜)
・フォトギャラリー





