【リノベ事例】港区六本木7丁目/リノベーションプロジェクト
今回は、洗練された高級エリア「港区六本木7丁目」に位置する築55年中古マンションのリノベーションをレポートしていきます。

1.地域情報
・六本木 名前の由来
「六本木」という地名の由来には諸説ありますが、最も広く知られている説は、江戸時代にこの地に6本の大きな松の木が目印として立っていたというものです。
また別の説では、青木家、一柳家、上杉家、片桐家、朽木家、高木家という6つの「木」の文字や「木」にまつわる姓を持つ大名の屋敷が並んでいたという説もあります。

今昔マップon the webより作成
・地域の歴史
江戸時代、江戸城の南西に位置する六本木周辺は田畑の広がるのどかなエリアでした。高台の多いエリアだったことから、寺社仏閣が多く造られるようになり、大名屋敷も次々と建設されて発展していきました。
明治時代になると、住人も少なく軍人施設の敷地を確保できたことから日本軍の兵隊が暮らす街へと変化していきます。
終戦後は六本木はアメリカ軍の進駐地として国際色豊かなエリアに変わりました。特に昭和時代には「六本木族」と呼ばれる若者文化が形成され、夜の街としての魅力が強まりました。
六本木は若者に人気がある一方で、かつてはアクセスが不便な地域でした。初期の頃は都電やバスによる移動が主流でしたが、1964年(昭和39年)の東京オリンピックに合わせて東京メトロ日比谷線が開通し、交通利便性が向上しました。その後、2000年(平成12年)には都営地下鉄大江戸線が開通し、新宿や東京方面をはじめ、多方面へのアクセスがさらに便利になりました。現在では、通勤者だけでなく観光客にとっても移動が快適になり、訪れやすい街へと進化しています。

■「六本木駅」から東京メトロ日比谷線で「銀座駅」まで約10分
■「六本木駅」から東京メトロ日比谷線で「恵比寿駅」まで約6分
■「六本木駅」から都営大江戸線で「新宿駅」まで約9分
■「乃木坂駅」から東京メトロ千代田線で「大手町駅」まで約11分
・これからの六本木
東京の中でも変化の速いエリアである六本木ですが、再開発のエリアには緑の公園や街路樹、アートを取り入れ、ビジネスや観光としてだけでなく、この地域で暮らす人々の環境も考えられた街に進化し続けています。
第2六本木ヒルズ(六本木五丁目西地区第一種市街地再開発事業)をはじめ、西麻布三丁目北東地区第一種市街地再開発事業が計画されています。この再開発でさらに街のイメージ変わっていきそうです。
ホテルや歩行デッキ、広場ができる開発なので通りのイメージも大きく変わりそうです。

第2六本木ヒルズ(六本木五丁目西地区第一種市街地再開発事業)
六本木ヒルズの成功を受けて計画された、大規模再開発プロジェクトが2025年度に着工されます。建築予定の2棟の超高層ビルの基壇部は森林で囲み“都心の森”の創出が街づくりのコンセプトの一つになっています。この基壇部の大部分は屋上庭園として開放され、場所によっては高さがあるため東京タワーを望めるスポットになります。
六本木駅方面からは屋上庭園の入口となる坂道が配置され、大規模な駅まち広場となります。2030年度の竣工予定が待ち遠しいです。
都市再生特別地区(六本木五丁目西地区)都市計画(素案)の概要より引用
西麻布三丁目北東地区第一種市街地再開発事業
六本木ヒルズの西側に、住宅・事務所・商業施設・ホテル機能を導入した地上54階地下4階の超高層ビルの建築が2025年3月から始まります。3つの寺社の再配置、テレビ朝日通り(補助10号線)の拡幅、歩行者デッキの設置、オープンスペース(広場)の整備も計画されていて、2029年8月下旬竣工予定となっています。

港区HPより引用
・周辺施設
六本木ヒルズ
2003年(平成15年)に大規模複合都市として“文化都心”をコンセプトに誕生しました。オフィスビルや集合住宅をはじめ、ホテル、テレビ朝日本社ビル、映画館で構成されていて「職・住・遊・憩・文化」が融合した都市空間として、国内外から多くの人が訪れる、東京の代表的なランドマークとなっています。
中でも、歴史と共に変化してきた「毛利庭園」は江戸時代の庭園を再現したスポットで、春は桜、秋は紅葉、冬はイルミネーションと季節によって楽しめる都会のオアシスです。

東京ミッドタウン
洗練されたデザインと豊かな緑が融合した空間で、2007年(平成19年)に赤坂旧防衛庁跡地に誕生しました。“JAPAN VALUE”をコンセプトに日本の美意識を表現しています。厳選されたショップやレストラン、文化施設やホテルがあり、四季折々のイベントや装飾も魅力で、落ち着いた大人の雰囲気と品格が特徴です。

国立新美術館
日本最大級の展示スペースを持つ美術館で、波打つガラスのファサードが特徴的な現代建築です。年間を通じて国内外の現代美術から古典まで幅広いジャンルの展覧会が楽しめます。広々とした空間は美術鑑賞だけでなく建築空間そのものも魅力で、多くの美術ファンや観光客が訪れるスポットです。
ほかにも、周辺には森アーツセンターギャラリー、 森美術館、サントリー美術館など多くの美術館があります。

2.物件情報
・立地
六本木トンネルの南東側に位置し、周辺には六本木ヒルズや東京ミッドタウンといった大型複合施設があり、徒歩圏内でショッピンやグルメが楽しめます。六本木と聞くと華やかで多くの人で賑わう街をイメージしがちですが、美術館や公園が多く、都会に居ながらアートや自然が身近に感じられる環境でもあります。

建物の目の前には大学院があり、都立青山公園も望める位置です。
都立青山公園は、広々とした芝生の広場で都心の喧騒から離れてリラックスできる空間を楽しめます。スポーツ施設も備わっているので、ジョギングや軽い運動の場としても利用されています。また、六本木トンネルを抜けると青山へ続く立地の良さも魅力的です。

・物件の特徴
建物全体は、住戸の位置を少しずつずらした個性的なデザインで、白を基調とした清潔感のある外壁に、アクセントとなる赤色の屋根が印象的です。ほかにも、エントランスに続くアプローチのタイルは幾何学模様で目を引きます。
個性的なデザインのため、全ての部屋に大きなバルコニーと出窓があり、明るい室内が想像できます。

2014年(平成26年)に大規模修繕工事が行われていています。共用部もキレイに清掃されていて、管理がしっかりされていることが分かります。

建物1階部分とエントランス横は、広い駐車場と駐輪場スペースになっています。

・物件概要
所在地:東京都港区六本木7丁目
交通:東京メトロ日比谷線「六本木」駅徒歩5分
構造:鉄骨鉄筋コンクリート造陸屋根地上9階建
総戸数:35戸
専有面積:45.62㎡
築年月:1970年7月
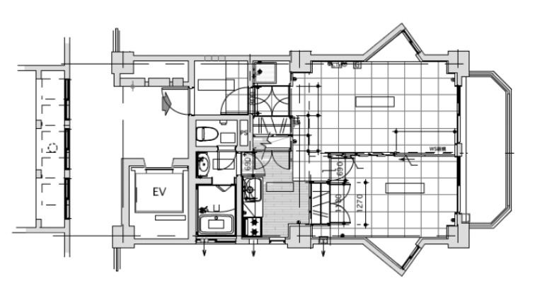
・間取り図< Before>

・室内写真<Before>




3.プランニング(5月22日更新)
・コンセプト
「都会の活気を楽しみながら、心安らぐ穏やかな暮らしを追求する住空間に」
六本木の賑やかな繁華街へのアクセスが良好でありながら、周囲には戸建てやマンションが立ち並ぶ落ち着いた住宅街が広がっています。そのため、他の地域から転居してくる人にとっても、利便性と快適さが調和した魅力的な住環境になります。
さらに、華やかな都会での生活を求める若い女性を想定し、快適さと心地よさを追求した住空間を提供するとともに、資産価値を向上させるためのリノベーションを行っていきます。
・リノベーション担当者の声と施工工事
Plan1. 2Kから1LDKへ変えて居住空間の機能を高める
Plan2. 眺望と機能性を兼ね備えた理想のキッチン配置
Plan3. 水回りをまとめて使いやすい生活動線に
Plan1. 2Kから1LDKへ変えて居住空間の機能を高める
もともと2Kであった間取りは、2つの部屋を区切る壁の上部が開いていて、どちらかというと事務所や作業場のような用途に適した環境が特徴でした。

このような壁の上部が開いたつくりを、天井までしっかりと仕切る形に変更することで、それまで一続きであった空間を明確に分割し、居住用の空間としての機能性を高めていきます。
その結果、生活の中で必要とされる静かな空間と、活動に適した空間をそれぞれ独立して確保できるようになり、住みやすさや快適さが向上していきます。

Plan2. 眺望と機能性を兼ね備えた理想のキッチン配置
この物件は、目の前に大きな建物がなく、眺望が楽しめる環境が特徴的です。都心に位置しているにもかかわらず、その静けさと開放感に包まれた景観は、まるで都市生活を忘れてしまうかのような心地よさを提供してくれます。
この眺望を活かして、LDKに入ってすぐに自然と目に飛び込んでくる景色を楽しめるように、水回りの設備をひとまとめに配置し、キッチンはペニンシュラ型キッチンを採用します。

さらに、この住空間の特徴は、キッチンが空間の中心に位置していることです。眺望を考慮しつつ、大型家具や家電の搬入がスムーズに行えるよう、十分なスペースを確保しました。その結果、動線も向上し、より快適な暮らしを実現します。
Plan3. 水回りをまとめて使いやすい生活動線に
浴室に設けられた窓を活かし、水回りの動線をスムーズにまとめます。浴室・洗面室・トイレを一列に配置することで、機能性と使い勝手を向上させ、より快適な空間を実現します。一般的に閉塞感を覚えがちな浴室であっても、このような窓の存在によって十分な明るさが確保されており、快適な空間が実現されます。

・間取りBefore/After(予定)

4.解体/施工工事
・解体
解体工事が完了した後、梁(ハリ)や床、配管の状態を確認し、最終的なプランの調整を行います。
もともと天井が高く、眺望の良い物件ですが、部屋の中央にある梁(ハリ)が今回のリノベーションの重要なポイントとなり、何度もプランの再検討を行いました。
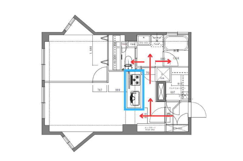
初回のプランでは、梁(ハリ)の位置を考慮してキッチンの配置を決めていました。しかし、キッチンとLD(リビングダイニング)への通路幅が狭くなり、大型家電や家具の搬入が困難になる懸念がありました。
さらに、排気ダクトを梁(ハリ)に沿わせる必要があることや、キッチンの高さを十分に確保できないことが判明し配置の変更を余儀なくされました。

修正プラン1では、キッチンを梁(ハリ)の前に配置することで、キッチン収納と玄関収納のスペースを拡充しました。また、居室の入口を斜めにしてWICをクローゼットへ変更することで、LD(リビングダイニング)への通路幅の問題を解決しました。しかし、キッチンの通路幅が狭いことが依然として課題となっており、LD(リビングダイニング)の広さももう少し確保したいところです。

修正プラン2では、キッチン収納と玄関収納のスペースを削減したことで、キッチンとLD(リビングダイニング)への通路幅の問題は解決しました。しかし、LD(リビングダイニング)の広さは依然として十分ではなく、さらに収納不足への懸念が残ります。
この段階で、キッチンを梁の後ろに配置し、LD(リビングダイニング)の広さを確保する案も検討しました。しかし、ここでも排気ダクトの問題が発生しました。キッチンを後方に移動したことで、レンジフードの設置位置を梁(ハリ)の前後どちらかに決める必要がありましたが、ガス台の前や手前に配置するのは不自然で、現実的ではありませんでした。

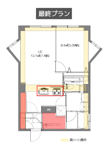
最終プランでは、キッチンの位置を大幅に変更し、それに伴い玄関からの動線も再調整しました。これによりLD(リビングダイニング)の広さを確保でき、玄関にはマルチクローゼットと収納を設置し、キッチン横にはカップボード配置することが可能になりました。

これまで課題となっていた排気ダクトは、水回り側に寄せることで長さを短縮し、さらにクローゼットやトイレの一部スペースをダクトルートとして活用しました。
最終プランの前は、従来の排気ダクトを活用する予定だったため、洗濯機置き場の上部が排気ダクトの導線となり、洗面室の収納不足が懸念されていました。しかし、居室に設置されていた換気口をダクトとして活用し、トイレタンクの上に収まるよう工夫することで、高さを必要としない空間を効率的に利用しました。その結果、洗濯機置場の上部にランドリーキャビネットを新設することが可能となりました。
また、レンジフードは梁(ハリ)に干渉し、コンロとの十分な距離を確保できないため、今回は初めて薄型を採用しました。キッチンの見た目をスッキリとさせることで、広々とした印象を演出する狙いもあります。


このように、調整を重ねながら慎重に検討を進め、ようやく工事を開始できる段階に至りました。
・枠組工事~壁立ち上がり(6月9日更新)
解体が完了し、枠組工事を経て壁が立ち上がることで、間取りの完成イメージがより鮮明になってきました。
間取りを大きく変える要因となった排気ダクトは、梁(ハリ)に沿わせてキッチンまで延長します。梁(ハリ)と一体化するようにダクトレールを組み込み、壁と天井をフラットに仕上げることで、無駄のない美しい空間を実現しました。さらに、必要最小限の開口部を設けることで、梁(ハリ)の存在を感じさせない高さにレンジフードを設置できるようにしています。(以下、枠組工事画像を参考)




5.施工完了(6月23日更新)
キッチンの設計を見直したことで、住まいのあらゆる場所から都心の開放的な景色を楽しめる、心地よい空間が完成しました。
✓ 機能性が向上した1LDKで独立した生活空間
✓ 眺望とデザインが調和する理想のLDK
✓ 生活動線を整えて明るい水回り空間に
・室内写真<After>
✓ 機能性が向上した1LDKで独立した生活空間
壁を天井まで仕切ることで、静かに過ごせる空間と活動しやすい空間がしっかりと独立し、暮らしに合わせた使い分けがしやすくなっています。
2面に窓があり、やわらかな自然光が差し込む室内は、穏やかな時間を過ごすのに最適です。シンプルな内装は、在宅ワークや趣味に集中したいときにもぴったりの環境になります。

✓ 眺望とデザインが調和する理想のLDK
眺望を活かす工夫により、LDKへ足を踏み入れた瞬間に、広がる景色を存分に楽しめる空間が実現しました。

この住まいの最大の特徴は、キッチンが空間の中心に配置されていることです。キッチン上に設置したペンダントライトは、LD(リビングダイニング)側から見るとアクセントとなり、空間に洗練された雰囲気をプラスしています。
また、通常はキッチンの背面に設置されるカップボードを、今回はキッチン横に配置することで、LDK全体に開放感をもたらし、より快適な空間を実現しました。

解体後に試行錯誤を重ねたキッチンの配置と排気ダクトは、トイレタンクの上にすっきりと収め、薄型レンジフードへとつながることで、美しく整理された仕上がりとなりました。

✓ 生活動線を整えて明るい水回り空間に
浴室・洗面室・トイレの動線が一体化され、使い勝手と機能性が大幅に向上しました。水回りの配置を工夫したことで、生活の流れがスムーズになり、快適な住空間が実現しています。
さらに、浴室に設けられた窓が想像以上の明るさをもたらし、開放的な雰囲気を演出。光の工夫によって、リラックスできる快適なバスルーム環境が整いました。

・担当者インタビュー
当初プランは当社の標準仕様で、いつもの間取りのようにきれいに収まり、LDの広さも確保できて理想的でした。しかし、今回の部屋とは相性が悪く、大きな梁があるため、どの間取りにしても懸念が残りました。
特に、その梁に干渉するダクトには長く悩まされましたが、最終的にはきれいに納まり、結果として満足のいく仕上がりになりました。
玄関から入って右手、キッチンの背後にあるPS(パイプスペース)が中央に位置していたため、動線の妨げとなっていました。間取りを少し変更するだけでも大きなレイアウト変更が必要となり、調整に苦労しました。
今回のリフォームでは、初めての試みがいくつもありました。
・天井の高さを活かした2.5mの特注扉
LDと居室、クローゼットに高さ2.5mの扉を採用。写真では伝わりにくいものの、現地では存在感があり、クローゼットの使い勝手もアップしたと思います。
・浴室に窓を設けて明るい空間に
自然光が差し込み、内装のカラーがより映えることを実感しました。
・トレンドを取り入れたグレーの仕様
これまでは、ホワイトやブラウン系の設備を採用することが多かったのですが、ショールームなどで意外にもグレーを選ばれる方が多いことに気づきました。
そこで今回は、初めてグレーを取り入れたキッチンに挑戦。グレーを基調とすることで、空間にほどよい落ち着きが生まれ、よりスタイリッシュな印象に仕上がりました。今後のリノベーションでも、積極的に採用していきたい仕様のひとつです。
・梁下にキッチン+ペンダントライトでアクセント
梁の影響でダウンライトは断念。その代わりにペンダントライトを設置し、空間のアクセントとなりました。
これまで手がけたリノベーションの中でも、今回は私にとって初めてのことが多く、試行錯誤の連続でとても大変でした。
解体後にプランを何度も検討・変更するなど、さまざまな課題がありましたが、スケジュール通りに無事完成できたのは、職人さんたちの支えがあったからこそです。
角部屋のような三方向からの採光をうまく活かした仕上がりになり、世代を問わず多くの方に気に入っていただける空間になったと思います。
(担当者:リノベーション事業部 小浜)
・フォトギャラリー





